Skip to content
Basara.

North Dumfries · Ayr · Detached · MLS# 40804605

673 BRANT WATERLOO Road Unit# 518

$375,000

2

bed

1

bath

792

sqft

1984

built

Detached · $473/sqft

Ask an agent about this property

Listed February 13, 2026

About this home.

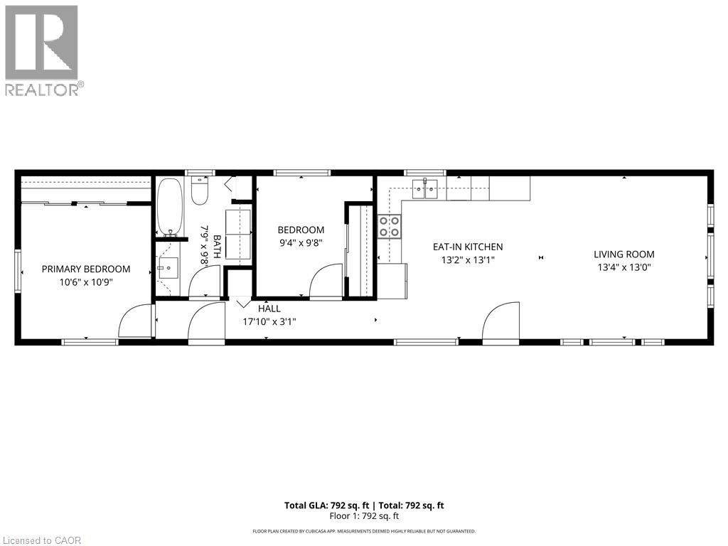
Welcome to Unit #518, a beautifully updated Northlander model offering the rare privilege of year-round living in the family-owned and operated Hillside Lake Park. Over the past few years, this home has undergone extensive renovations and presents a fresh, move-in-ready space to call your own. Step inside to find new vinyl plank flooring, fresh paint, upgraded lighting, and custom zebra blinds throughout. The stylish eat-in kitchen features upgraded cabinetry, stainless steel appliances, and a rough-in for a dishwasher. A spacious living room with two large windows fills the home with natural light, while the primary bedroom offers comfortable proportions right beside the 4-piece bathroom with in-suite laundry. A second bedroom or flex room makes the perfect spot for an office, craft space, or guest room. Outdoors, you’ll love spending time on the massive 40' x 12' covered deck, complete with a 10' x 12' screened-in room—perfect for morning coffee or evening gatherings. The exterior of this home is surrounded by mature trees and features a fire pit, deck with gazebo, and two sheds for extra storage. Included in the sale are tons of extras such as outdoor furniture, shelving, firewood, and more! Very rarely do these year-round units come up for sale, especially ones with these upgrades, so DO NOT miss your chance! Book your showing today! [Monthly rent: $540.04 (additional fees apply)] (id:59491)

The full record.

Property typeDetached
Year built1984
Square footage792 sqft
Lot size0
Bedrooms2
Bathrooms1
HeatingForced air
CoolingCentral air conditioning
ListedFebruary 13, 2026

How this listing prices against Ayr.

5

Sales

$690,000

Median price

33

Days on market

96.2%

% of list

20

Active listings

N/A

Months supply

Ayr accounted for 5 of North Dumfries' 7 sales and had 20 active listings, making it the clear centre of activity in the township this period. The neighbourhood's $840,697 average price sat below the citywide average, but its $690,000 median matched the city median, which suggests most demand is concentrated in the mid-market while a few higher-priced township sales lifted the overall North Dumfries average. Homes here took 33 days to sell, a bit slower than the city average, but they still achieved 96.23 percent of list, showing buyers are active when homes are priced close to market. With both freehold and condo inventory available, Ayr is offering more choice and a more layered market than the rest of North Dumfries right now.

Read the full North Dumfriesreport →

Estimate the monthly carry.

Down payment
%($75,000)
Mortgage rate
%
Amortization
years

Estimated monthly payment

$1,717

Principal$300,000
Total interest$215,178
Total paid$515,178

Estimate only. Excludes property tax, condo fees, and insurance.

Questions on this property?

Neso Basara

RE/MAX Icon Realty

Waterloo Region

Contact form coming soon. Click above to email directly.

673 BRANT WATERLOO Road Unit# 518, North Dumfries — $375,000