Skip to content
Basara.

Kitchener · Laurentian Hills/Country Hills W · Townhouse · MLS# 40795820

2139 STRASBURG Road Unit# 8

$472,900

3

bed

2

bath

952

sqft

2026

built

Townhouse · $497/sqft

Ask an agent about this property

Listed January 13, 2026

About this home.

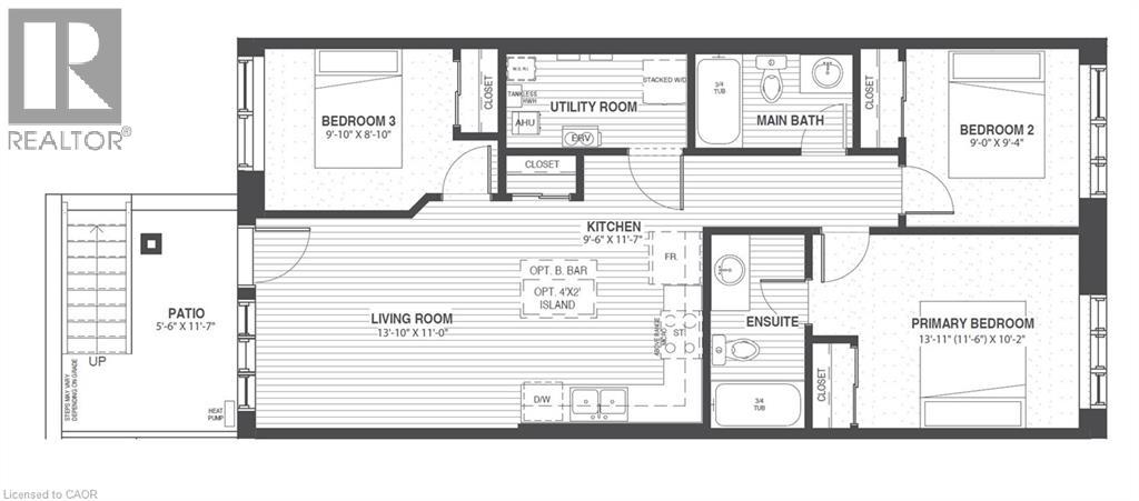
Open House Sat & Sun 1-4PM Sales Centre is located at 35 Trillium Drive Unit 1 (lower level) This limited-time pre-construction offer includes FREE ASSIGNMENT /NO OCCUPANCY FEE/ZERO DEVELOPMENT LEVY/NO TARION ENROLLMENT FEE. Expected occupancy closing for the complex is between late 2026 and late 2027, making this an excellent opportunity for first-time home buyers and investors looking to enter the market or expand their portfolio. This brand-new stacked NET ZERO READY condominium community located in a highly desirable area , offers LOW condo fees and outstanding convenience. The Hearthwood is a spacious 3 bedroom, 2 FULL bath unit with a large living room offering patio access and open to the kitchen. A large primary suite with ensuite bath, 2 additional bedrooms/office space, laundry room and main 4pc bath. HEAT PUMP . Enjoy easy access to Highway 401, walking distance to schools, and proximity to Conestoga College, shopping, dining, and the new RBJ Schlegel Park and sports complex. Surrounded by Brigadoon Woods, the community offers surface parking and transit stops right outside the complex. Price reflects full 13% HST Rebate. All offers to be submitted at full purchase price inclusive of HST. Any HST Rebate is subject to legislative approval and Buyer qualification. If HST Rebate is unavailable or Buyer does not qualify, Buyer shall be responsible for the full amount of HST payable. Terms apply. (id:59491)

The full record.

Property typeTownhouse
Year built2026
Square footage952 sqft
Lot size0
Bedrooms3
Bathrooms2
HeatingForced air,Heat Pump, ,
CoolingCentral air conditioning
ListedJanuary 13, 2026

How this listing prices against Laurentian Hills/Country Hills W.

22

Sales

$727,050

Median price

22

Days on market

97.4%

% of list

76

Active listings

N/A

Months supply

Read the full Kitchenerreport →

Estimate the monthly carry.

Down payment
%($94,580)
Mortgage rate
%
Amortization
years

Estimated monthly payment

$2,166

Principal$378,320
Total interest$271,354
Total paid$649,674

Estimate only. Excludes property tax, condo fees, and insurance.

Questions on this property?

Neso Basara

RE/MAX Icon Realty

Waterloo Region

Contact form coming soon. Click above to email directly.

2139 STRASBURG Road Unit# 8, Kitchener — $472,900