Skip to content
Basara.

Cambridge · Preston South · Detached · MLS# 40781296

543 QUEENSTON Road

$859,900

3

bed

3

bath

2,009

sqft

1905

built

Detached · $428/sqft

Ask an agent about this property

Listed October 24, 2025

About this home.

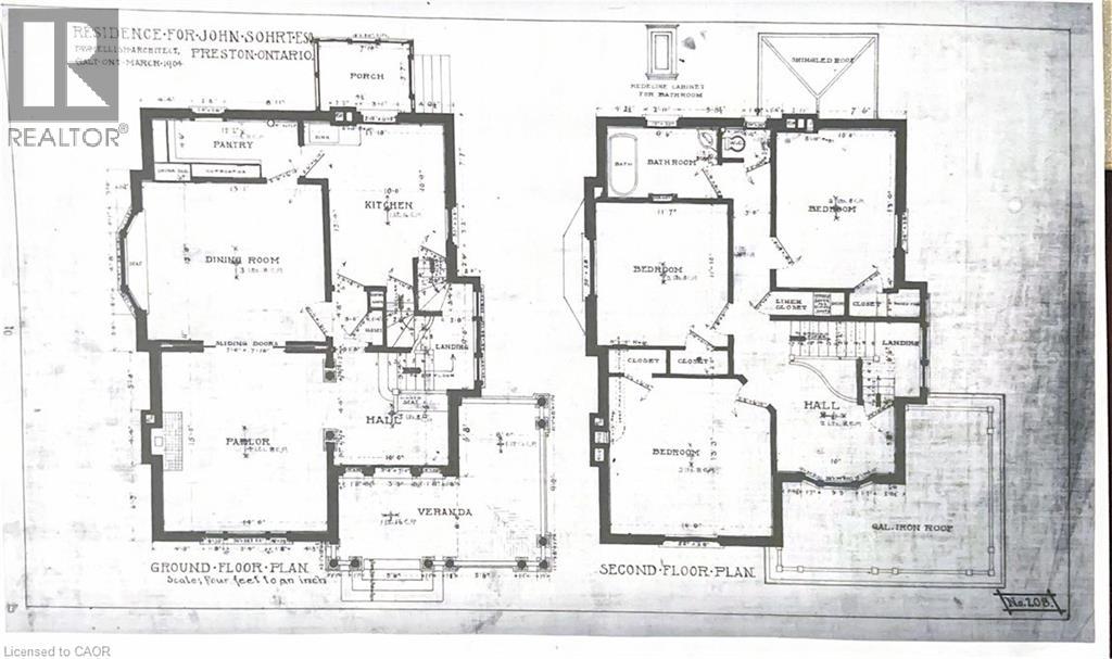
Welcome to 543 Queenston — a rare heritage masterpiece in the heart of Preston. Built 1905 and cared for by one family for six decades, this stunning red-brick Queen Anne-style home exudes character. From the wrap-around veranda (rebuilt 2015) to the tree-lined avenue steps from Uptown Preston, 3-bed, 3-bath home offers a blend of charm and convenience. Designated on the City of Cambridge’s heritage register, it’s ready for its next chapter with smart, local roots. As you approach, the craftsmanship of the covered veranda, rebuilt in 2015, stands out. Leaded-glass windows frame the front entry, while a distinctive shingled gable with round and Palladian windows grace the home’s south side, a hallmark of its historic design. A welcoming foyer opens to generous living and dining rooms with pegged oak floors, nearly 10-foot ceilings, and original glass-panelled pocket doors. Living room is anchored by a wood-burn fireplace, while the dining room has bay window seats and a built-in China cabinet that shows home’s character and history. The eat-in kitchen has plenty of workspace and storage and a butler’s pantry. Upstairs, the beautiful oak staircase leads to a large landing that connects to three generous bedrooms and a roomy family bathroom. While the bath awaits your modern touch, its size and separate water closet offer incredible potential. The upper attic is full of character could be transformed into a luxurious primary suite, studio, or family room. The expansive 58’ x 143’ lot provides ample space for a pool, garden, or future addition, and the detached single-car garage with reinforced bracing and a newer roof complements the six-car driveway. This home has seen thoughtful updates while preserving its original charm, including a new fence (2022), balcony door (2023), flat roof (2023), chimneys and flute (2023), landing bay windows (2023), attic windows (2023), all exterior cedar shakes (2023), hot water tank (2024, rented), and new porch steps (2025). (id:59491)

The full record.

Property typeDetached
Year built1905
Square footage2,009 sqft
Lot size0
Bedrooms3
Bathrooms3
HeatingRadiant heat,Hot water radiator heat, ,
CoolingNone
ListedOctober 24, 2025

How this listing prices against Preston South.

3

Sales

$580,000

Median price

14

Days on market

97.3%

% of list

12

Active listings

N/A

Months supply

Preston South saw 3 sales and 12 active listings, so inventory remains well ahead of deal flow. The average price was $606,667, below the Cambridge average, while homes sold in 14.3 days at 97.33 percent of list, suggesting buyers are still acting quickly on the right listings. This is a lower-volume freehold neighbourhood where demand is present, but not broad enough to absorb supply quickly.

Read the full Cambridgereport →

Estimate the monthly carry.

Down payment
%($171,980)
Mortgage rate
%
Amortization
years

Estimated monthly payment

$3,938

Principal$687,920
Total interest$493,418
Total paid$1,181,338

Estimate only. Excludes property tax, condo fees, and insurance.

Questions on this property?

Neso Basara

RE/MAX Icon Realty

Waterloo Region

Contact form coming soon. Click above to email directly.

543 QUEENSTON Road, Cambridge — $859,900