Skip to content
Basara.

Cambridge · Hillcrest/Forbes Park · Other · MLS# 40819766

12 TANNERY Street E

$2,100,000

4,000

sqft

Other · $525/sqft

Ask an agent about this property

Listed April 10, 2026

About this home.

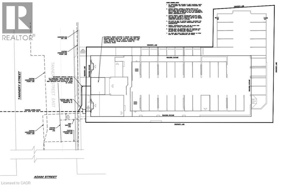
Rare, fully prepared development opportunity in the heart of Hespeler Village. Ideally located steps from the Speed River, boutique shops, cafés, and established residential neighbourhoods, this property offers the perfect blend of small-town charm and long-term investment potential. Site plan approved for 40 units and one cground floor commercial unit, this development offers a profitable mix of 1-2 and 3 bedroom units. Importantly, this site is not subject to the current regional development freeze related to municipal water servicing constraints. As one of the few areas in Waterloo Region where water allocation remains available, this property provides a significant advantage—allowing buyers to proceed without the uncertainty impacting many other projects. All required permits have been secured and fully paid, and the purchase price includes all development charges. With key approvals in place and major upfront costs already addressed, this is a true turnkey-ready opportunity that minimizes risk, shortens timelines, and accelerates the path to construction. Surrounded by a mix of historic character and thoughtful new development, 12 Tannery Street East presents an exceptional opportunity for builders and investors seeking a strategic project in one of Cambridge’s most desirable village settings. Full documentation available upon request. (id:59491)

The full record.

Property typeOther
Square footage4,000 sqft
Lot size0.5 acres
ListedApril 10, 2026

How this listing prices against Hillcrest/Forbes Park.

4

Sales

$665,000

Median price

9

Days on market

95.1%

% of list

4

Active listings

N/A

Months supply

Hillcrest/Forbes Park posted 4 sales and 4 active listings, giving it one of the more balanced supply pictures in the city. The average price was $630,000, below the Cambridge average, and homes sold in just 9.3 days, but only at 95.12 percent of list, showing that buyers moved quickly once prices became realistic. This is a neighbourhood with decent turnover but clear sensitivity to overpricing.

Read the full Cambridgereport →

Estimate the monthly carry.

Down payment
%($420,000)
Mortgage rate
%
Amortization
years

Estimated monthly payment

$9,617

Principal$1,680,000
Total interest$1,204,999
Total paid$2,884,999

Estimate only. Excludes property tax, condo fees, and insurance.

Questions on this property?

Neso Basara

RE/MAX Icon Realty

Waterloo Region

Contact form coming soon. Click above to email directly.