Skip to content
Basara.

Cambridge · Clemens Mills/Saginaw · Detached · MLS# 40800408

79 ZIEMAN Crescent

$1,178,900

5

bed

3

bath

3,748

sqft

2005

built

Detached · $315/sqft

Ask an agent about this property

Listed January 22, 2026

About this home.

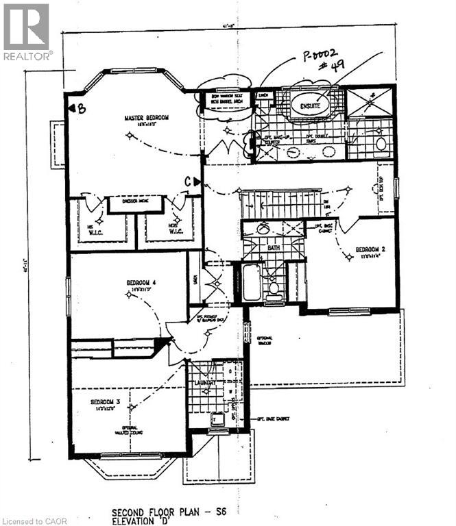
Welcome to 79 Zieman Crescent! This meticulously maintained 5-bedroom, 2.5-bathroom home with a total of 6 parking spots offersapproximately 4,000 sq ft of living space and is tucked away on a quiet street in a highly sought-after neighbourhood—perfect for a growingfamily. With a double car garage, main floor bedroom (currently used as an office), and abundant natural light, it’s just minutes from Highway401, making it ideal for commuters. The main floor with 9ft ceilings offers a bright, functional layout: formal living room, main floor bedroom (oroffice), 2-piece bath, and a separate coffered ceiling dining room with arches which flows into the open-concept kitchen and family room. Thespacious eat-in kitchen boasts a large island with breakfast bar, stainless steel appliances, under counter lighting, and ample cupboard space—conveniently located just off the garage entry. The adjoining family room features a cozy gas fireplace, lots of natural light and is perfect foreveryday living and entertaining. Upstairs, the primary suite is a true retreat with his-and-her walk-in closets, an electric fireplace, and aluxurious 5-piece ensuite with dual sinks, a 6-foot soaker tub, and a glass-enclosed shower. Three additional generously sized bedrooms, a fullbathroom, and an upper-level laundry room complete the second floor. The partially finished basement offers even more living space, currentlyset up as a large rec room with a bar/games/movie area, a home gym, and a large storage area that could be converted into bedrooms and abathroom (rough-in located near the furnace). Step outside to a fully fenced private backyard—ideal for entertaining, kids, and pets alike. Enjoythe well-maintained patio for summer BBQs or quiet evenings outdoors. Conveniently located near top-rated schools, parks, tennis, volleyball,forest trails, public & school bus routes, shopping, place of worship, and just minutes to the 401— a must see! (id:59491)

The full record.

Property typeDetached
Year built2005
Square footage3,748 sqft
Lot size0
Bedrooms5
Bathrooms3
HeatingForced air,, ,Natural gas
CoolingCentral air conditioning
ListedJanuary 22, 2026

How this listing prices against Clemens Mills/Saginaw.

9

Sales

$965,000

Median price

25

Days on market

96.6%

% of list

26

Active listings

N/A

Months supply

Clemens Mills/Saginaw remained one of Cambridge's larger higher-end freehold markets, with 9 sales and 26 active listings. The average price was $937,889, far above the city average, while homes sold in 24.6 days at 96.57 percent of list, pointing to measured demand and firmer negotiation than many mid-market areas. This is an active neighbourhood, but buyers still have enough selection to resist aggressive pricing.

Read the full Cambridgereport →

Estimate the monthly carry.

Down payment
%($235,780)
Mortgage rate
%
Amortization
years

Estimated monthly payment

$5,399

Principal$943,120
Total interest$676,464
Total paid$1,619,584

Estimate only. Excludes property tax, condo fees, and insurance.

Questions on this property?

Neso Basara

RE/MAX Icon Realty

Waterloo Region

Contact form coming soon. Click above to email directly.